2 kambarių butas, Naujininkai, Lenkų g., 40.98m², 2 aukštas

Vilniaus m., Naujininkai, Lenkų g.
Parduotas
Adresas
  • Savivaldybė: Vilnius
  • Miestas: Vilniaus m.
  • Mikrorajonas: Naujininkai
  • Gatvė: Lenkų g.

Bendra informacija
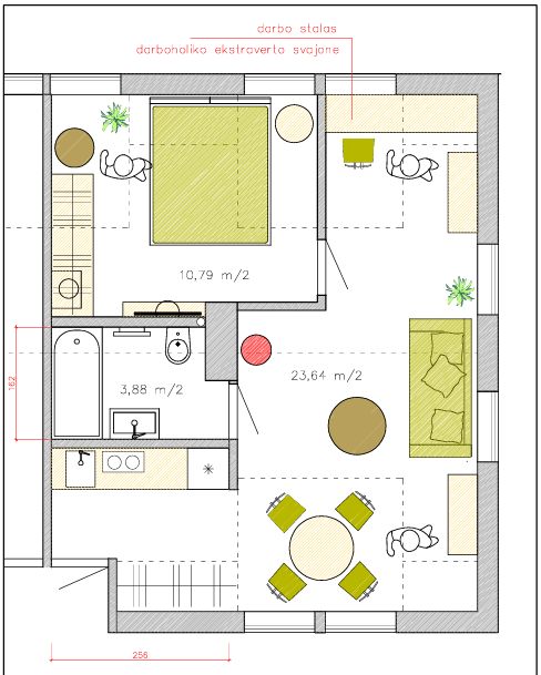
  • Plotas: 40,98m2
  • Kambarių skaičius: 2
  • Aukštas: 2
  • Aukštų sk.: 2
  • Metai: 1940
  • Renovacijos metai: 2022
  • Pastato tipas: Medinis
  • Šildymas: Kita
  • Įrengimas: Neįrengtas

Ypatybės
  • Atskiras įėjimas
  • Aukštos lubos
  • Butas palėpėje
  • Parkingas
  • Renovuotas namas
  • Uždaras kiemas
  • Visuomeninis transportas

Papildomos patalpos
  • Vieta automobiliui

Apsauga
  • Šarvuotos durys

Aprašymas

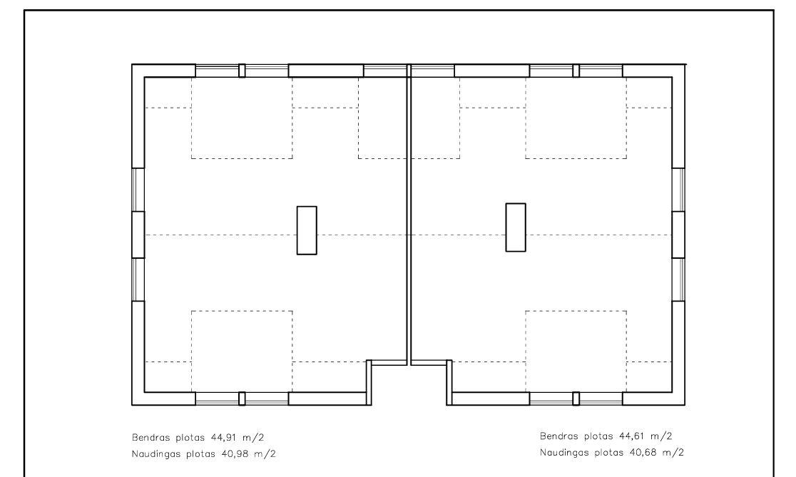
Puikioje, strategiškai patogioje vietoje, Naujininkuose parduodami 2 kambarių 40.98 kv m. ir 40.68 kv.m butai Lenkų g. 22 name.

 

Bendra informacija:

-Butai yra 2-ame aukšte iš 2-ių.

-Yra galimybė pirkti butus abu kartu arba po vieną. 

 

Privalumai:

- Puiki investicija.

- Butą galima išplanuoti pagal savo poreikį.

- Butas šviesus.

- Patogi lokacija Naujininkų rajone. Šalia yra parduotuvės, viešojo transporto stotelės.

- Funkcionalios panaudojimo galimybės  šiuolaikiškam butui.

- Draugiška kaimynystė.

- Aplink namą yra gausu parkavimo vietų, tad nebus rūpesčių kur nemokamai pastatyti jūsų automobilius.

-Aukštos lubos.

-Patogus privažiavimas.

 

Komunikacijos:

-Miesto vandentiekis.

-Miesto kanalizacija.

-Elektros įvadas.

-Dujų įvadas yra ant namo.

 

Įrengimas:

-Butai nėra pilnai įrengti, todėl galėsite patys planuotis erdves.

-Pakeisti nauji plastikiniai langai.

-Pakeistas naujas skardinis stogas.

 

Vieta:

-1 min. pėsčiomis iki parduotuvės AIBĖ.

-3 min. pėsčiomis iki viešojo transporto stotelės.

-5 min. pėsčiomis iki PC MAXIMA.

-5 min. pėsčiomis iki PC LIDL.

-15 min. pėsčiomis iki Aušros vartų bei senamiesčio.

-6 min. automobiliu iki Vilniaus miesto centro.

******************************************************************

 

Dėl detalesnės informacijos telefonu, skambinkite 9-21 valandomis visomis savaitės dienomis.

Nepavykus prisiskambinti, rašykite sms - perskambinsiu.

 

******************************************************************

Aš mielai prisidėsiu prie Jūsų NT istorijos pradžios. Domina NT ar turite susijusių klausimų? Susisiekite, konsultacija nemokama!

******************************************************************

www.oppa.lt


Kaina

Pasiteirauti dėl apžiūros

Tapk vienu iš mūsų! Prisijunk prie OPPA brokerių komandos.