3 kambarių butas, Šnipiškės, 66.25m², 4 aukštas, €330000

Vilniaus m., Šnipiškės,
€330000 (5000,00 €/m²)
2025-07-28 Peržiūrėjo: 336
Adresas
  • Savivaldybė: Vilnius
  • Miestas: Vilniaus m.
  • Mikrorajonas: Šnipiškės

Bendra informacija
  • Plotas: 66,25m2
  • Kambarių skaičius: 3
  • Aukštas: 4
  • Aukštų sk.: 7
  • Metai: 2019
  • Pastato tipas: Mūrinis
  • Šildymas: Centrinis kolektorinis
  • Įrengimas: Įrengtas

Ypatybės
  • Galima deklaruoti gyvenamąją vietą
  • Liftas
  • Uždaras kiemas
  • Virtuvė sujungta su kambariu
  • Visuomeninis transportas

Papildomos patalpos
  • Balkonas
  • Terasa
  • Vieta automobiliui

Papildoma įranga
  • Buitinė įranga
  • Dušo kabina
  • Indaplovė
  • "Rekuperacinė sistema
  • Šaldytuvas
  • Skalbimo mašina
  • Su baldais
  • Virtuvės komplektas
  • Viryklė

Apsauga
  • Kodinė laiptinės spyna
  • Šarvuotos durys
  • Vaizdo kameros

Aprašymas

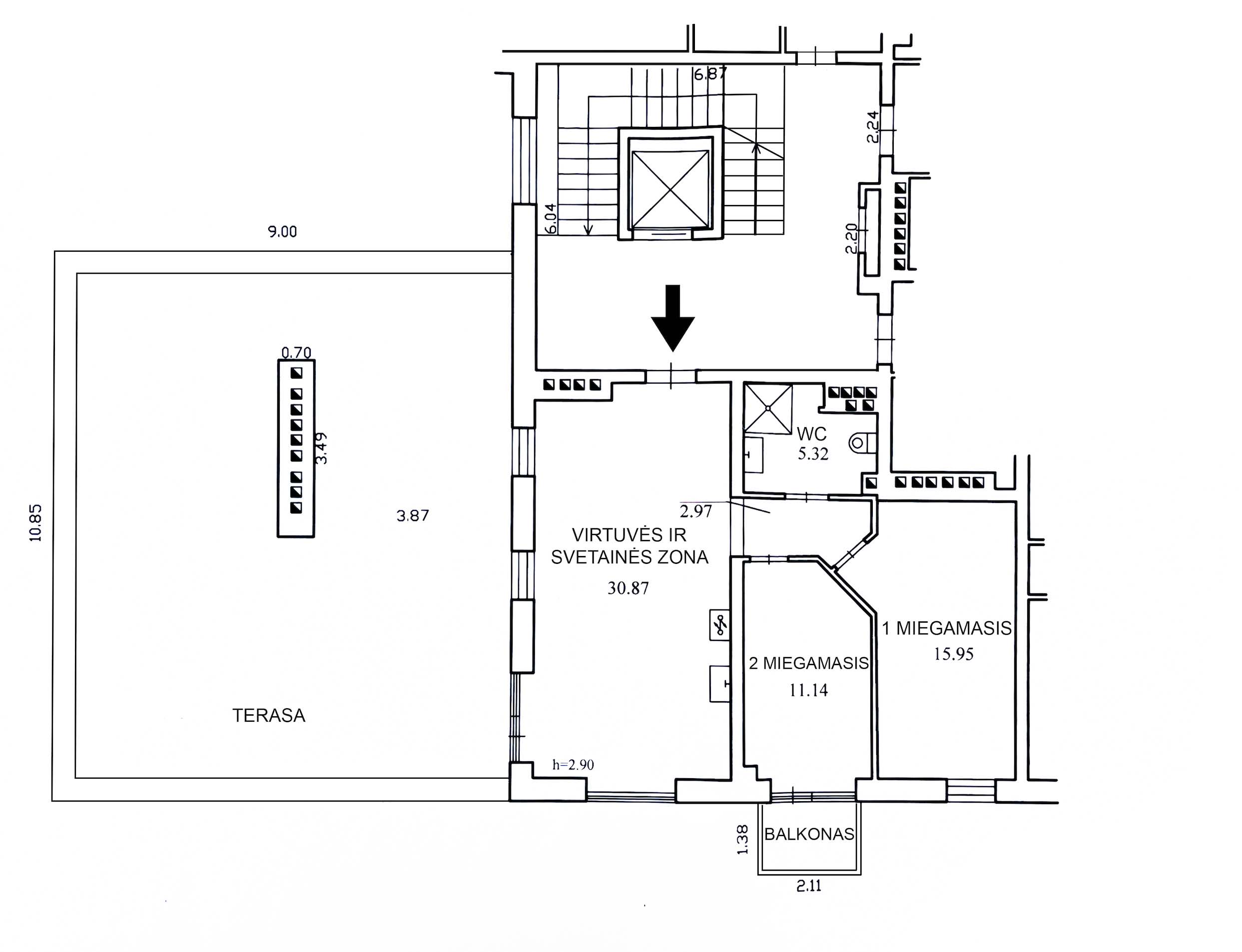
PARDUODAMAS 3 KAMBARIŲ BUTAS SU DIDELE TERASA IR POŽEMINIU PARKAVIMU

Parduodamas šviesus ir jaukus 3 kambarių butas strategiškai patogioje vietoje. Bendras buto plotas – 66,25 kv. m, su erdvia svetaine ir tiesioginiu išėjimu į įspūdingą 95,2 kv. m nuosavą terasą – puiki vieta poilsiui, vakarienėms ar pasibuvimams su draugais. Taip pat yra papildomas balkonas.


BENDRA INFORMACIJA

- Adresas: Oršos g. 5, Vilnius.
- Plotas: 66,25 kv. m + 95,2 kv. m terasa.
- Aukštas: 4 iš 7.
- Kambarių skaičius: 3.
- Namo tipas: Mūrinis.
- Šildymas: Centrinis kolektorinis.
- Statybos metai: 2019.
- Paskirtis: Gyvenamosios paskirties (butas).


BUTO PRIVALUMAI:

- Erdvi svetainė su virtuve – 30,87 kv. m, funkcionaliai suplanuota.
- 2 atskiri miegamieji – 15,95 kv. m ir 11,14 kv. m.
- Šiuolaikiškai įrengtas vonios kambarys – 5,32 kv.m.
- Aukštos kokybės apdaila, stilingi baldai ir apšvietimas.
- Heringbono rašto grindys, dideli langai.
- Butui priklauso Pagalbinio ūkio patalpa 4,69 kv.m.
- Požeminė parkavimo vieta – už papildomus 20 000 €.
- Butas parduodamas su visais baldais ir buitine technika – galima keltis gyventi iš karto.
- Vidinis uždaras kiemas – įrengta vaikų žaidimų aikštelė.
- Rami, draugiška ir tvarkinga kaimynystė.

LOKACIJA:

- Butas įsikūręs Oršos gatvėje, strategiškai patogioje vietoje, netoli Neries upės, pušynų ir pasivaikščiojimų takų.
- Netoliese – „Maxima“, „Iki“, „Panorama“, „Rimi“, sporto klubai, kavinės, restoranai.
- Puikus susisiekimas – lengvai pasiekiamas miesto centras tiek automobiliu, tiek viešuoju transportu.
- Šalia: darželiai, mokyklos, medicinos įstaigos, taip pat Vilniaus vakarinis aplinkkelis, leidžiantis greitai pasiekti kitus rajonus ar išvažiuoti iš miesto.

 

 

 


Kaina
€330000 (5000,00 €/m²)

Pasiteirauti dėl apžiūros

Tapk vienu iš mūsų! Prisijunk prie OPPA brokerių komandos.