Gamybos ir sandėliavimo patalpos, Aukštieji Paneriai, Sandėlių g., 125m², 2 aukštas, €265000

Vilniaus m., Aukštieji Paneriai, Sandėlių g.
€265000 (2120,00 €/m²)
2026-01-08 Просмотрело: 28
Адрес
  • Mуниципалитет: Vilnius
  • Город: Vilniaus m.
  • Rайон: Aukštieji Paneriai
  • Yлица: Sandėlių g.

Общая информация
  • Площадь: 125,00m2
  • Этаж: 2
  • Год постройки: 1979
  • Renovacijos metai: 2018
  • Назначения помещений:Gamybos ir sandėliavimo
  • Оборудование:Полностью оборудованное

Описание

Parduodamas 125 m² komercinis pastatas Sandėlių g., Vilnius
Puikus objektas investicijai arba nuosavam verslui
____________________________________________________
BENDRA INFORMACIJA

• Bendras pastato plotas: 125 m²
• Žemės sklypas: 5,32 a
• Paskirtis: gamybos ir pramonės
• Pastatas renovuotas 2018 metais
• Aukštos lubos, atvira erdvė
• Patogus įvažiavimas į teritoriją
• Aptverta teritorija su uždaromais vartais
• Asfaltuotas privažiavimas
• Yra vietos parkavimui
____________________________________________________
KOMUNIKACIJOS IR ĮRENGIMAS
• Elektra
• Komunalinis vandentiekis
• Komunalinė nuotekų sistema
• Geras privažiavimas krovininiam transportui
• Tvarkingas, funkciškas patalpų išplanavimas
____________________________________________________
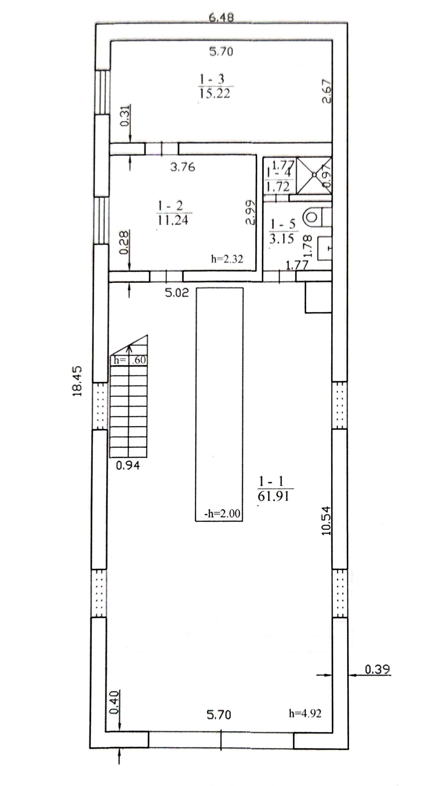
VIDAUS IŠPLANAVIMAS

-1 aukštas – 93,24 m² (5 patalpos)

• Dirbtuvių patalpa – 61,91 m²
• Sandėlis – 11,24 m²
• Personalo patalpa – 15,22 m²
• Dušas – 1,72 m²
• Tualetas – 3,15 m²

-2 aukštas – 32,09 m² (2 patalpos)

• Kabinetas – 16,70 m²
• Poilsio patalpa – 15,39 m²

Iš viso: 7 patalpos, bendras plotas 125,33 m²
____________________________________________________
VIETA
Sandėlių g. – industrinė, komercinė Vilniaus dalis, vertinama dėl patogaus susisiekimo ir verslams pritaikytos aplinkos.
Greitas ir patogus privažiavimas iš pagrindinių miesto gatvių
Aplink įsikūrusios įvairios komercinės įmonės
Teritorija tinkama logistikai, gamybai, servisui, sandėliavimui
____________________________________________________
Parduodamas komercinis pastatas strategiškai patogioje Vilniaus vietoje – Sandėlių g. Šiuo metu patalpos yra išnuomotos, todėl yra galimybė objektą įsigyti kartu su nuomininkais. Pastatas renovuotas 2018 m., tvarkingas, su racionaliu išplanavimu ir reikalingomis komunikacijomis.


Цена
€265000 (2120,00 €/m²)

Договориться посмотреть

Стань одним из нас! Присоединяйся к команде брокеров OPPA.