Gyvenamasis namas, Bajorai, M. K. Šemetos g., 2 aukštų, 229.75m², 12a, €485000

Vilniaus m., Bajorai, M. K. Šemetos g.
€485000 (2108,70 €/m²)
2026-04-27 Просмотрело: 20
Адрес
  • Mуниципалитет: Vilnius
  • Город: Vilniaus m.
  • Rайон: Bajorai
  • Yлица: M. K. Šemetos g.

Общая информация
  • Площадь: 229,75m2
  • Площадь участка: 12,00 a
  • Количество комнат: 5
  • Количество этажей: 2
  • Год постройки: 2025
  • Тип построения: Блочный
  • Тип дома:Дом (жилой)
  • Отопление: Центральное коллекторное
  • Вода: Городская система водоснабжения
  • Оборудование:Частичная отделка

Особенности
  • Асфальтированное покрытие
  • Возле леса
  • Общественный транспорт

Дополнительные помещения
  • Балкон
  • Гараж

Описание

Parduodamas individualus namas šalia miško su garažu

Parduodamas erdvus ir funkcionaliai išplanuotas dviejų aukštų individualus gyvenamasis namas ramioje, žalumos apsuptoje vietoje – šalia miško. Tai puikus pasirinkimas ieškantiems privatumo, gamtos artumo ir patogaus gyvenimo mieste.

Bendra informacija:
Namo tipas: Gyvenamasis namas
Aukštų skaičius: 2
Kambarių skaičius: 5
Bendras plotas: 229,75 kv. m
Sklypo plotas: 12 a
Šildymas: Įrengtas grindinis šildymas
Vandentiekis: Komunalinis
Nuotekos: Komunalinės
Dujos: Gamtinės
Sienos: Blokeliai
Stogo danga: Beasbestis cementas

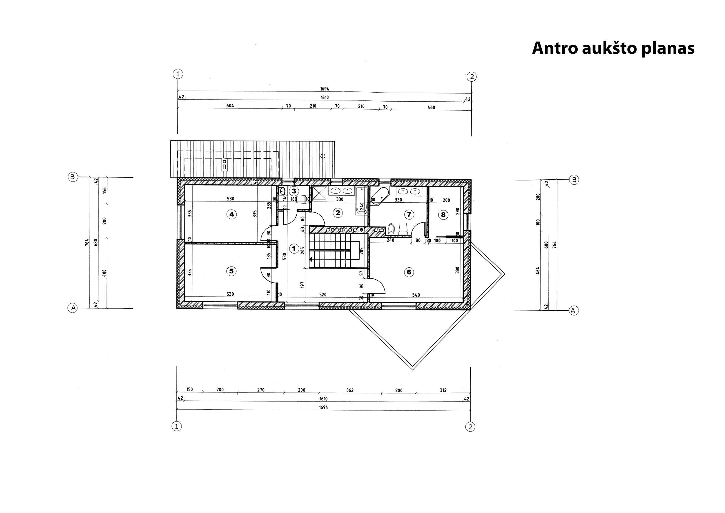
Išplanavimas:
Pirmas aukštas (121,7 kv. m):
Tambūras – 3,8 kv. m
Koridorius – 16,9 kv. m
WC – 1,4 kv. m
Virtuvė – 8,8 kv. m
Svetainė su valgomuoju – 50,9 kv. m
Kambarys – 26,6 kv. m
Rūbinė – 7,1 kv. m
Katilinė – 6,2 kv. m

Antras aukštas (94,4 kv. m):
Laiptinė – 16,2 kv. m
San. mazgas – 7,9 kv. m
WC – 2,5 kv. m
3 kambariai – 17,8 kv. m; 17,8 kv. m; 20,5 kv. m
San. mazgas – 9,1 kv. m
Rūbinė – 5,8 kv. m

Namo privalumai:
Sklypas ribojasi su mišku – užtikrintas privatumas ir ramybė
Dideli vitrininiai langai su vaizdu į mišką
Erdvi, šviesi svetainės zona
Atskiras 18 kv. m garažas
Sklype įrengtas tvenkinys
Patogus ir funkcionalus išplanavimas, tinkamas didesnei šeimai

Vieta ir aplinka:
Namas įsikūręs M. K. Šemetos gatvė, ramioje individualių namų kaimynystėje, pasižyminčioje žaluma ir privatumu. Sklypas ribojasi su mišku, todėl čia kasdien galėsite mėgautis gamtos artumu, tyla ir grynu oru.

Gyvenamoji vieta yra Vilnius mieste – patogiai pasiekiamas miesto centras ir kiti rajonai.
Netoliese yra viešojo transporto stotelės, užtikrinančios patogų susisiekimą, taip pat greitas išvažiavimas į pagrindines miesto arterijas.

Aplink – tvarkinga individualių namų aplinka, mažas triukšmo lygis ir saugi kaimynystė. Netoliese rasite mokyklas, darželius, prekybos centrus bei kitas kasdieniam gyvenimui reikalingas paslaugas.

 

Nekilnojamojo turto agentūra „Oppa“
www.oppa.lt


Цена
€485000 (2108,70 €/m²)

Договориться посмотреть

Стань одним из нас! Присоединяйся к команде брокеров OPPA.