Sklypas (namų valda), Rūtų g., 11a

Bukiškis, Rūtų g.
Продано
Адрес
  • Mуниципалитет: Vilniaus r. sav.
  • Город: Bukiškis
  • Yлица: Rūtų g.

Общая информация
  • Площадь (а): 11,00 a
  • Вид: Продажа
  • Назначение участка:Жилая земля

Особенности
  • Асфальтированное покрытие
  • Без зданий
  • Электричество
  • Геодезические измерения

Описание

ŽEMĖS SKLYPAS UŽ Nerealią KAINĄ SU STATYBOS LEIDIMU PRIE PAT VILNIAUS RIBOS – BAJORAI- BUKIŠKIS !

 

VIETA IR APLINKA

  • Vilniaus m. Vilniaus raj. Rūtų g.

CHARAKTERISTIKOS

  • Sklypo plotas 11 arų.
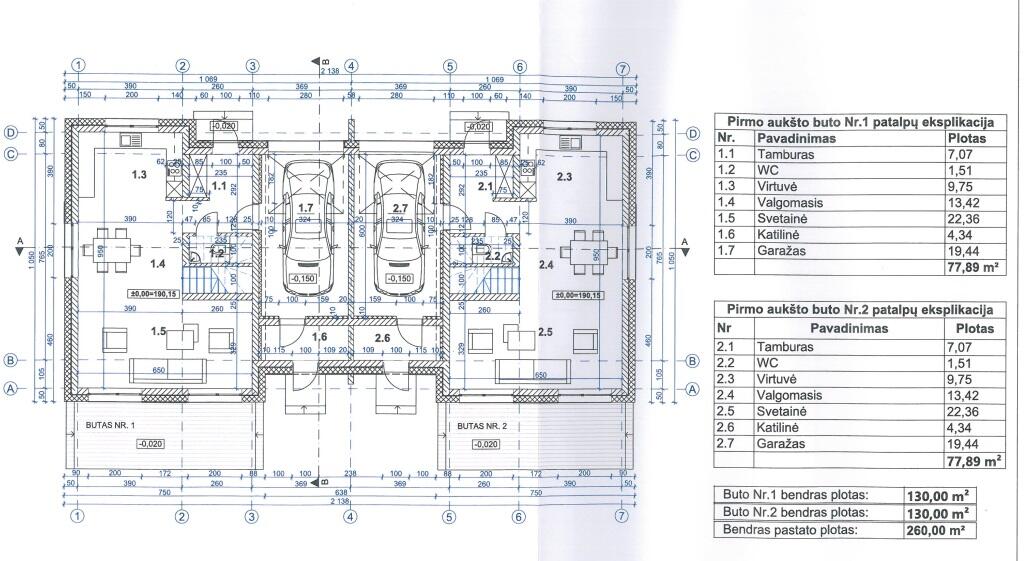
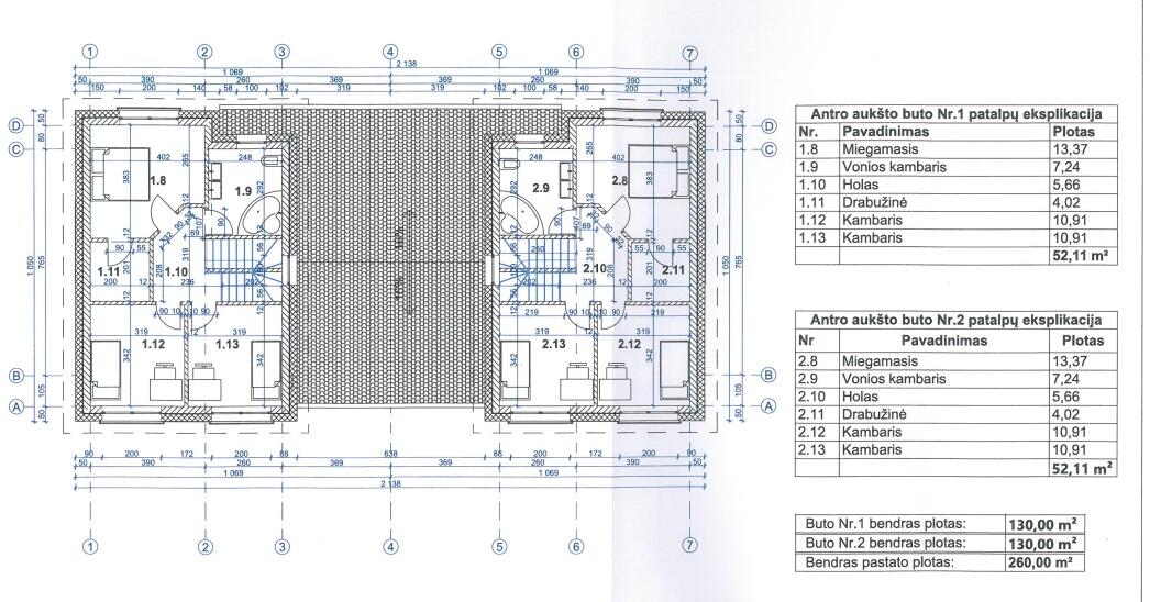
  • Paskirtis – Vienbučių ir dvibučių gyvenamųjų pastatų teritorijos.
  • Geros formos sklypas, puikiai tiko dvibučiui suprojektuoti.

KOMUNIKACIJOS

  • Elektra trifazė jau atvesta. Atskiras skaitiklis.
  • Nuotekos numatytos vietinės
  • Vandentiekis numatytas vietinis.

SUSISIEKIMAS

  • Iki asfaltuotos gatvės apie 300 metrų.
  • Iki Vilniaus miesto centro 13 kilometrų arba 20 minučių automobiliu.

PS. JEI NENORITE Sklypo, GALIME PASIŪLYTI NAMĄ - STOVINTI ŠALIA SKLYPO.

Daugiau informacijos telefonu.

www.oppa.


Цена

Договориться посмотреть

Стань одним из нас! Присоединяйся к команде брокеров OPPA.