Sublokuotas namas, Rūtų g., 2 aukštų, 130m², 2a

Bukiškis, Rūtų g.
Sold
Address
  • Municipality: Vilniaus r. sav.
  • City: Bukiškis
  • Street: Rūtų g.

General information
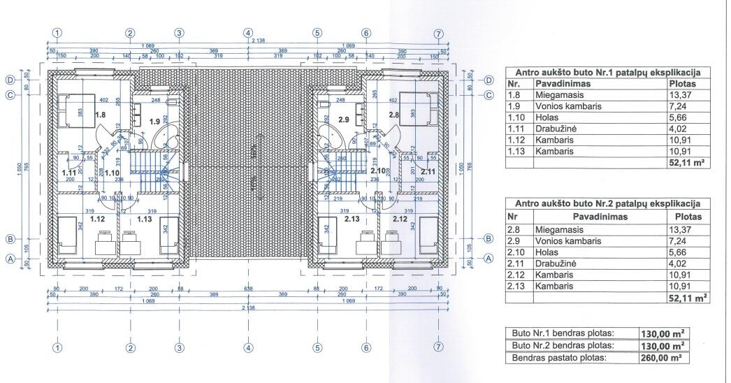
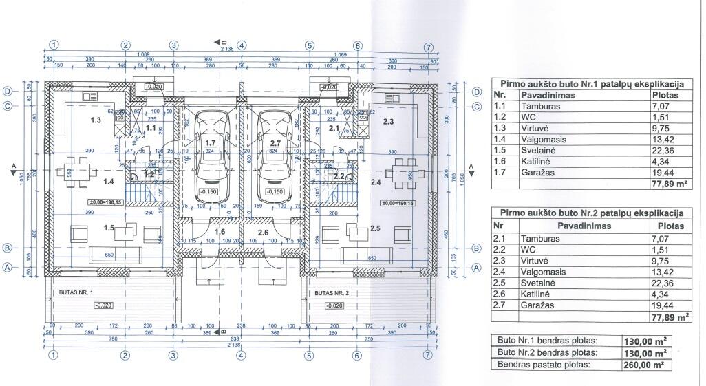
  • Area: 130.00m2
  • Land plot area: 2.00 a
  • Number of rooms: 4
  • No. of floors: 2
  • Year built: 2023
  • Building type: Block house
  • Type of house:Semi-detached
  • Heating system: Aerothermal
  • Equipment:Partially equipped

Features
  • Asphalt driveway

Description

Parduodama 130kv.m. sublokuoto namo dalis Bukiškyje, baigtumas 65-70% dokumentai tvarkomi.
Namas sparčiai besivystančiame Bukiškio dalyje, netoli Rimi parduotuvės, Privažiavimas 300 metrų žvyruotu keliu. ( žadama šiais metais ištiesti asfaltą).
Taip pat šalia namo parduodamas 11arų sklypas su statybos leidimu ir identišku namo projektų.
Apie namą:
- A+ energetinio naudingumo klasė;
- Pamatai poliniai iš išorės apšildinti 15 cm. Iš vidaus 10cm putų polisterolu;
- Sienos: 25 cm storio dujų silikatų blokeliai , apšiltintos 25 cm EPS putų polistirolu;
- Grindys: uslietos juodgrindes.
- Fasado apdaila: dekoratyvinis tinkas, belieka nusidažyti norima spalva;
- Stogas dvišlaitis, medinės konstrukcijos karkasas uždengtas , dažyta, skarda, apšiltintas 25cm vata”;
- Langai: plastikiniai , atitinkantys A+ klasės standartus;
- Vidaus sienos/pertvaros: blokeliai;
- Grindys: Išnaudoja juodgrindės.
- Padaryti laiptai.
Daugiau informacijos telefonu.
www.oppa.lt


Price

Contact agent to view the property

Become one of us! Join the OPPA team of brokers.