3 kambarių butas, Šiaurės miestelis, S. Žukausko g., 80.40m², 3 aukštas

Vilniaus m., Šiaurės miestelis, S. Žukausko g.
Parduotas
Adresas
  • Savivaldybė: Vilnius
  • Miestas: Vilniaus m.
  • Mikrorajonas: Šiaurės miestelis
  • Gatvė: S. Žukausko g.

Bendra informacija
  • Plotas: 80,40m2
  • Kambarių skaičius: 3
  • Aukštas: 3
  • Aukštų sk.: 5
  • Metai: 2002
  • Pastato tipas: Mūrinis
  • Šildymas: Centrinis kolektorinis
  • Įrengimas: Įrengtas

Ypatybės
  • Galima deklaruoti gyvenamąją vietą
  • Galima su gyvūnais
  • Internetas
  • Kabelinė televizija
  • Nauja kanalizacija

Papildoma įranga
  • Indaplovė
  • Šaldytuvas
  • Skalbimo mašina
  • Su baldais
  • Virtuvės komplektas
  • Viryklė
  • Vonia

Aprašymas

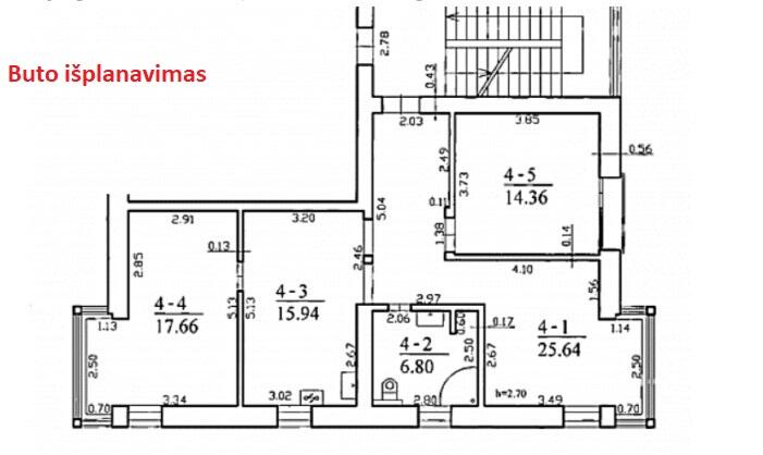
Puikioje, strategiškai patogioje vietoje parduodamas 3 kambarių 80,4 kv m. erdvus butas S. Žukausko g. 49 name.

Butas randasi 3-ame aukšte iš 5-ių

Jauki, rami vieta gyvenimui, viskas šalia.

Vos per 30 minučių pėsčiomis pasieksite Katedros aikštę ir Gedimino pilį. Visai šalia atrasite daugybę svarbių kultūrinių ir pramoginių objektų. Netoliese - Šiaurės miestelis.

Ši zona visada buvo komfortiška gyvenimui ir komerciškai patraukli vystymui, atitinkanti šiuolaikinio žmogaus poreikius.

 

Privalumai:

- Bute nesenai atliktas santechninis (nauji vamzdžiai) ir kosmetinis remontas.

- Geras, erdvus buto išplanavimas.

- Butas šviesus, langai orientuoti į šiaure ir pietus.

- Patogi lokacija tarp Šnipiškių ir Žirmūnų (Senamiestį pasieksite pėstute, netoli Neries upė, Outlet parkas, Kalvarijų turgus, geras susisiekimas su visais Vilniaus rajonais, šalia prekybos centrai, gydymo įstaigos, vaikų darželiai, mokyklos, degalinės ).

- Funkcionalios panaudojimo galimybės 3 kambarių šiuolaikiškam butui.

- Draugiška kaimynystė.

- Aplink daug aikštelių (taip pat namo kieme) tad nebus rūpesčių kur nemokamai pastatyti jūsų automobilius.

 

Daugiau informacijos telefonu, skambinkite 10-20 valandomis.

Nepavykus prisiskambinti, rašykite sms - perskambinsiu.

******************************************************************

Nekilnojamo turto agentūra OPPA.

www.oppa.lt


Kaina

Pasiteirauti dėl apžiūros

Tapk vienu iš mūsų! Prisijunk prie OPPA brokerių komandos.